Eladó Téglalakás, Győr

#165902472

Eladó Téglalakás

70.94 millió Ft

Győr Szitásdomb
Alapterület:
61 m2
Szobák száma:
1 + 2
Állapot:
Új építésű
Építési mód:
Tégla
5 %-os ÁFA
építés alatt
Erkély-Terasz
Garázs, saját kocsibeálló
Jó közlekedéssel
Megújuló energia!
Szigetelt épület
Új építésű

Kérjen személyes bemutatást!
Adja meg adatait, és hogy mikor érne rá!

Az Adatkezelési tájékoztatót elolvastam és elfogadom.

Megfelelő időpontok

Hétköznap délelőtt
Hétköznap délután
Hétköznap este
Hétvégén délelőtt
Hétvégén délután
Hétvégén este
Kérés elküldése
1. Emelet
Hőszigetelt
Házközponti egyedi méréssel
Utcára
Kelet
Közösségi kert
2
Összkomfort
230 - 400 Volt
Van, saját vízórával
Közműhálózatba bekötve

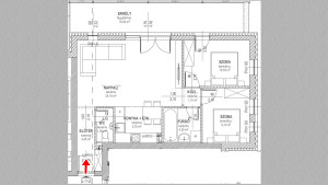
Győr-Szitásdomb II. eladó egy amerikai konyhás nappali + 2 hálószobás + nagy erkélyes ÚJ ÉPÍTÉSŰ lakás.

Vámosszabadi-Szitásdomb II. Modern-fiatalos környezetben - szép épületek között épül fel ez az impozáns 35 lakásos társasház.  Az épület kialakítása a kortárs építészet szellemében egyszerű, letisztult formavilágú.

 

Egyedi megjelenés - modern dizájn - energiatakarékos fenntartás.

 

Várható átadás: 2026. III. negyedéve. A kivitelezés megkezdődött.

 

A szóban forgó ingatlan az 1. emeleten lévő 2. és a 9. számú lakás. 

Nettó 61,36 nm + 18,54 nm-es erkély.

Amerikai konyhás nappali + 2 hálószoba + erkély.

 


Korlátozott számban az adott emeleten lévő tárolót /1,58nm-2,45nm = 1,58MFt - 2,45MFt/ és az

udvaron belüli kocsibeállót lehet vásárolni.

 

Az U alakú épületben 3 szinten lettek a lakások elhelyezve.

A külső- és teherhordó  falszerkezetek: POROTHERM 30 N+F falazóelemből,

a lakáselválasztó falazat: LEIEERTHERM 25/30 AKU hanggátló téglából,

a válaszfalak: POROTHERM 10 N+F falazóelemből, 10 cm vastagságban készülnek.

A homlokzati hőszigetelés : 15 cm AUSTROTHERM AT-H80 lesz.

A homlokzati nyílászárók: VEKA 76AD kívül-belül fehér szerkezetek, toktoldókkal, melyek hőszigeteltek. /5légkamrás-3rétegű üvegezéssel/

A hőenergia előállítása központilag, levegő-víz hőszivattyú teleppel lesz megoldva, melyek nyáron hűtést is biztosítanak.

A hőleadás padló- és mennyezetfűtéssel, lakások egyedi hőmennyiségmérővel, szobatermosztáttal, fürdőszobában csővázas radiátorral.

 

Az árak emeletszintű fűtéskész árat jelentenek.

Telek adásvételi és Vállalkozói kivitelezési szerződéssel, készültségnek megfelelő fizetéssel lehet szerződni.

Kulcsrakész kivitelezés külön megállapodás alapján lehetséges. Erre a bank külön biztosít összeget.

 

Most még választhat. Nézzük meg együtt ezt a ragyogó ajánlatot. Hívjon, akár hétvégén is.

 

Irodánkban bankfüggetlen hiteltanácsadással és ügyintézéssel segítjük álmai megvalósításában.

Energetikai és ügyvédi háttér.

 

 

 

Helyiség Méret (m2)
Nappali 18.54
Konyha + étkező 5.76
Szoba 9.1
Fürdőszoba + WC 4.29
Erkély 18.54
Előszoba 4.45
Szoba 10.53

Kérdése van?
Adja meg adatait és felhívjuk!

Az Adatkezelési tájékoztatót elolvastam és elfogadom.
Üzenet küldése